2 Memorial Square, Martinborough, South Wairarapa
By Negotiation
120m2







+26
Opportunities on The Square
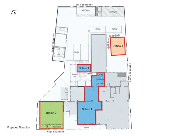
Three exciting new developments are being considered for this high-profile complex at the heart of Martinborough’s Memorial Square and CBD. With planning still at a conceptual stage, parties interested in leasing premises in this much sought after location will have an opportunity to provide input into the design-build process to help create premises suitable for their envisaged use. Option 1: With one of the long-standing tenants revising their product offering, an opportunity has arisen to create a new tenancy. Accompanying photographs show the existing space and the same space digitally modified to illustrate the space that will become available – approximately 90m2 of floor space facing and opening off ‘The Square’ and ideally suited to a retail operation or the provision of a professional service. Scope exists to add a further 8m2 (approx.) suitable for use as an office or storage. Work on modifying the existing tenancy will commence very soon, so make a time now to discuss your vision for this upcoming tenancy. Option 2: A superbly positioned semi-enclosed pergola directly facing ‘The Square’ has been earmarked for an extensive make-over including it being enclosed and enlarged to provide attractive, high-profile stand-alone premises of approximately 60m2. Take advantage of this excellent opportunity to influence how this structure might be designed and re-developed to ensure it will cater as perfectly as possible for you. Option 3: Part of the vacant grassed area facing Cambridge Road is also being considered for development. This will lend itself perfectly to the creation of a small funky studio with a footprint of around 30m2. Expressions of interest are eagerly sought for each of these very exciting and rare development opportunities. Please call me to set up a time to share and discuss ideas and options and how we might best create a customised leasable space for you.
2 Memorial Square, Martinborough, South Wairarapa
Web ID
CC209711
Floor area
120m2
By Negotiation
View by appointment
Contact
